IPOCFG em Coimbra

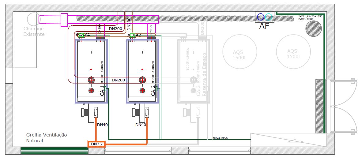
Projetos de reabilitação energética das centrais técnicas do IPO de Coimbra

 

Projetos de reabilitação energética das centrais do IPO de Coimbra

Unsupported Browser

Unfortunately your browser is not supported.

It is highly recommended that you upgrade to a modern browser such as the latest versions of Google Chrome, Firefox or Internet Explorer.